Schouwtjeslaan 13

Haarlem € 495.000,- k.k.
Bouwjaar1895
TypeWoonhuis
Woonoppervlakte74 m2
Perceel oppervlakte68 m2
Slaapkamers2
Badkamers1

Goed onderhouden en bijzonder sfeervolle tussenwoning in de Koninginnebuurt.

Bekijk deze woning via een virtuele bezichtiging. Loop door de woning heen, bekijk de woning van een afstand of zoom in. Benieuwd? Kijk op onze website of op Funda onder 3D tour.

De woning ligt op loopafstand van het centrum en de Haarlemmerhout. Via openslaande deuren kom je in de stadstuin met een fijn terras. In de straat kan je nog gratis parkeren, openbaar en vergunningvrij. Het onderhoud is goed en de afwerking modern. Vanaf 2000 is er veel vernieuwd en gerenoveerd, zoals de badkamer, het pannendak met dakisolatie, de aanbouw met keuken etc.

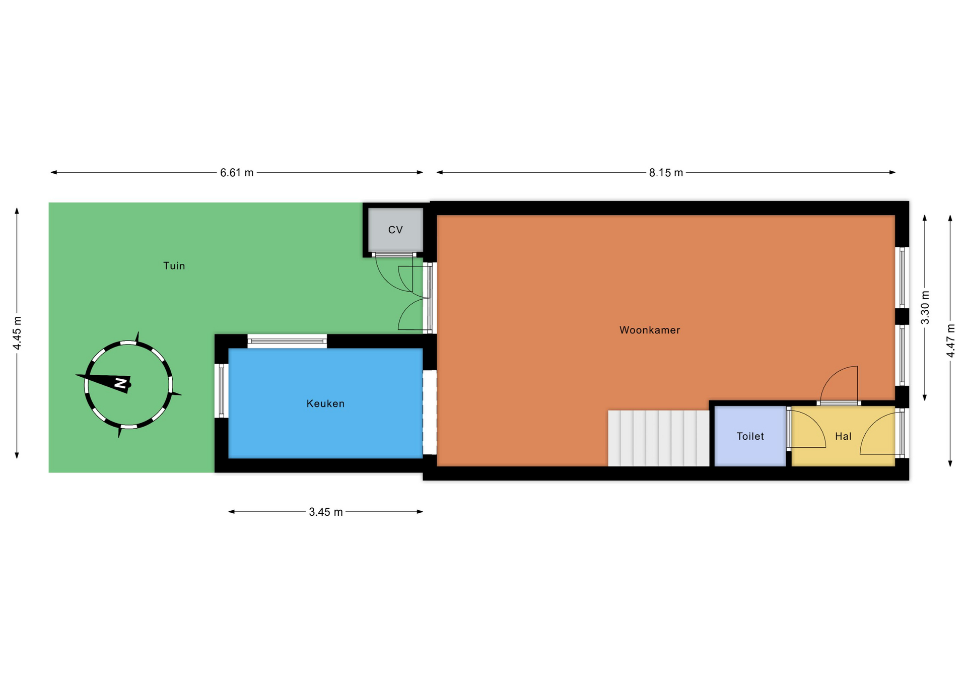
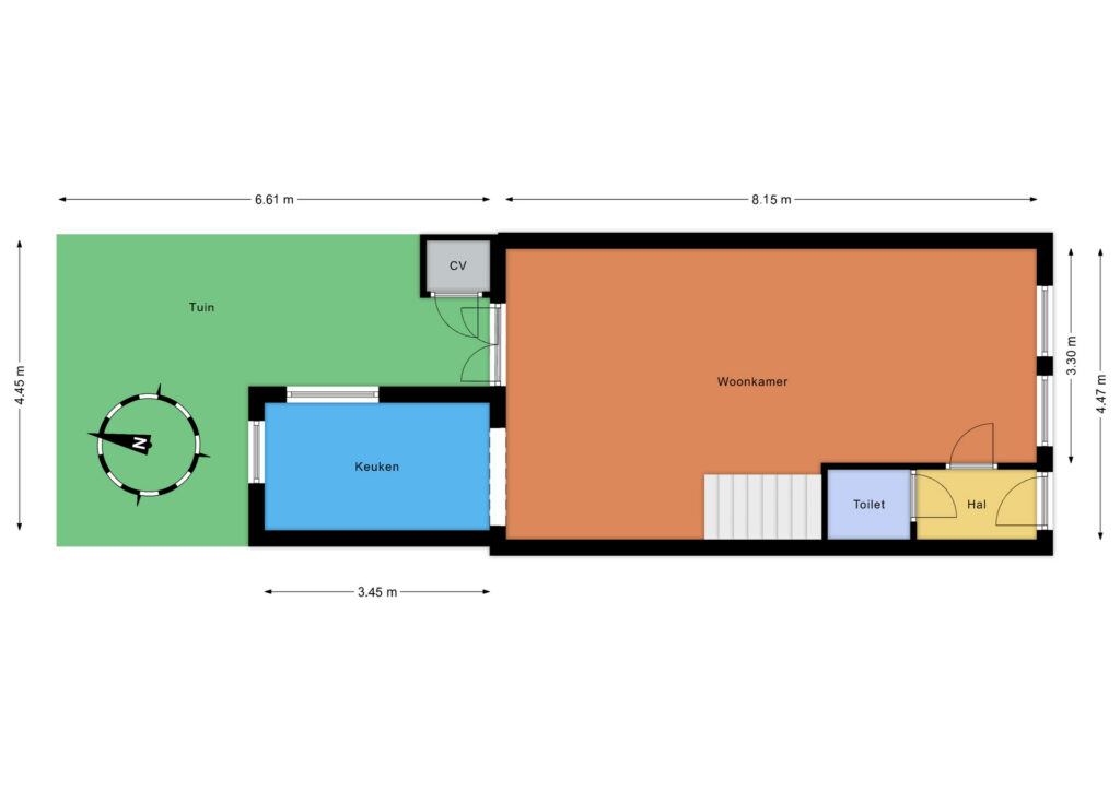
Parterre: entree, hal, modern toilet, woonkamer met plafond van 3 mater hoog en openslaande deuren naar de tuin op het zuiden, moderne open keuken
1e etageL overloop, moderne badkamer met bad, toilet en wastafelmeubel, 2 goede slaapkamers, veel vaste kasten

- Bijzonder sfeervolle woning
- Woonoppervlak ca 74 m2
- Achtertuin op het Noord-Westen
- Ruime woonkamer met open haard, 3m hoog plafond en openslaande deuren
- Moderne keuken en sanitair
- Aan de rand van de Koninginnebuurt
- Op loopafstand van het centrum en de Haarlemmerhout
- Veel voorzieningen in de buurt
- Op fietsafstand van station, duinen en strand
- Bouwkundig gekeurde woning
- Oplevering in overleg

Overdracht
Status
Verkocht
Koopprijs
€ 495.000,-
Aanvaarding
In overleg
Woonoppervlakte
74 m2
Inhoud
275 m3
Bouwvorm
Soort object
Woonhuis
Type woning
Tussenwoning
Soort
Eengezinswoning
Bouwjaar
1895
Bouwvorm
Bestaande bouw
Ligging
Aan drukke weg, In woonwijk
Overdracht
Woonoppervlakte
74 m2
Perceel oppervlakte
68 m2
Inhoud
275 m3
Aantal kamers
3
Aantal slaapkamers
2
Energie
Energieklasse
D
Isolatievormen
Dakisolatie, Grotendeels dubbelglas
Verwarming
CV ketel
Bouwjaar
2010
Buitenruimte
Tuin
Achtertuin
Hoofdtuin
Achtertuin
Hoofdtuin oppervlakte
21 m2
Positie
Noordwest
Achterom
Nee
Kwaliteit
Normaal
Parkeergelegenheid
Garage
Geen garage
Parkeer faciliteiten
Openbaar parkeren
Dak
Soort dak
Mansardedak
Kwaliteit dak
Pannen
Voorzieningen
Voorzieningen
Natuurlijke ventilatie
Overig
Permanente bewoning
Ja
Onderhoud binnen
Goed
Onderhoud buiten
Goed
Huidig gebruik
Woonruimte
Huidige bestemming
Woonruimte

Plattegronden

Lijkt deze woning iets voor jou?

Plan een bezichtiging
Wij worden met een 9,5 beoordeeld door onze klanten