Lotterstraat 43

Haarlem € 425.000,- k.k.
Bouwjaar1906
TypeWoonhuis
Woonoppervlakte93 m2
Perceel oppervlakte75 m2
Slaapkamers3

Fijne eengezinswoning met 3 slaapkamers in de rustige Lotterstraat.

De woning heeft een prima ligging vlakbij de winkels van de Cronjé, winkelcentrum Spaarneboog, een grote AH, diverse (basis)scholen en speelpleinen. Op fietsafstand van het NS-station en de Haarlemse binnenstad.

Parkeren voor de deur en een gunstige ligging ten opzichte van van uitvalswegen naar o.a. de A9, Amsterdam en Schiphol.

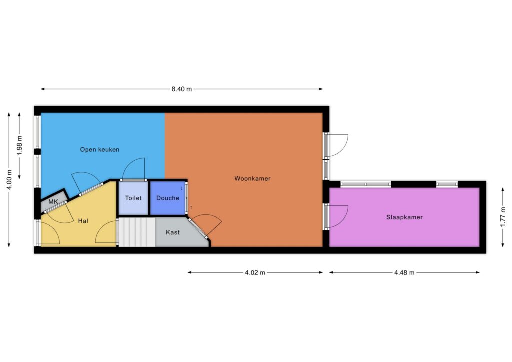
Parterre: entree, hal, woonkamer met open keuken, toilet, douche, slaapkamer, tuin op het westen
1e etage: overloop, toilet, woon/slaapkamer, open keuken, douche, dakterras op het westen
2e etage: overloop, slaapkamer

- Woonoppervlakte ca 93 m2
- Bouwjaar circa 1905
- Eigen grond 75 m2
- Voorzien van dubbele beglazing.
- Cv-ketel 2020
- Dubbele keuken en douche
- Bouwkundig gekeurde woning
- Aanvaarding in overleg, kan snel

Overdracht
Status
Verkocht o.v.
Koopprijs
€ 425.000,-
Aanvaarding
In overleg
Woonoppervlakte
93 m2
Inhoud
285 m3
Bouwvorm
Soort object
Woonhuis
Type woning
Tussenwoning
Soort
Eengezinswoning
Bouwjaar
1906
Bouwvorm
Bestaande bouw
Ligging
Aan rustige weg, In woonwijk
Overdracht
Woonoppervlakte
93 m2
Perceel oppervlakte
75 m2
Inhoud
285 m3
Aantal kamers
4
Aantal slaapkamers
3
Energie
Energieklasse
F
Isolatievormen
Dubbelglas
Verwarming
CV ketel
Bouwjaar
2020
Buitenruimte
Tuin
Achtertuin
Hoofdtuin
Achtertuin
Hoofdtuin oppervlakte
25 m2
Positie
West
Achterom
Nee
Kwaliteit
Normaal
Parkeergelegenheid
Garage
Geen garage
Parkeer faciliteiten
Openbaar parkeren
Dak
Soort dak
Samengesteld dak
Kwaliteit dak
Pannen, Bitumineuze Dakbedekking
Voorzieningen
Voorzieningen
Natuurlijke ventilatie
Overig
Permanente bewoning
Ja
Onderhoud binnen
Redelijk tot goed
Onderhoud buiten
Redelijk tot goed
Huidig gebruik
Woonruimte
Huidige bestemming
Woonruimte

Plattegronden

Lijkt deze woning iets voor jou?

Plan een bezichtiging
Wij worden met een 9,5 beoordeeld door onze klanten