Leliestraat 34

Haarlem € 525.000,- k.k.
Bouwjaar1890
TypeWoonhuis
Woonoppervlakte77 m2
Perceel oppervlakte48 m2
Slaapkamers3
Badkamers1

Karakteristieke tussenwoning (voormalige arbeiderswoning) uit 1890 met 3 ruime slaapkamers, tuin op het zuid-westen en ligging in een autoluwe straat op 5 minuten loopafstand van het centrum van Haarlem.

De woning is smaakvol gemoderniseerd en recent is er een 2e etage gerealiseerd.

Bekijk deze woning via een virtuele bezichtiging. Loop door de woning heen, bekijk de woning van een afstand of zoom in. Benieuwd? Kijk op onze website of op Funda onder 3D tour.

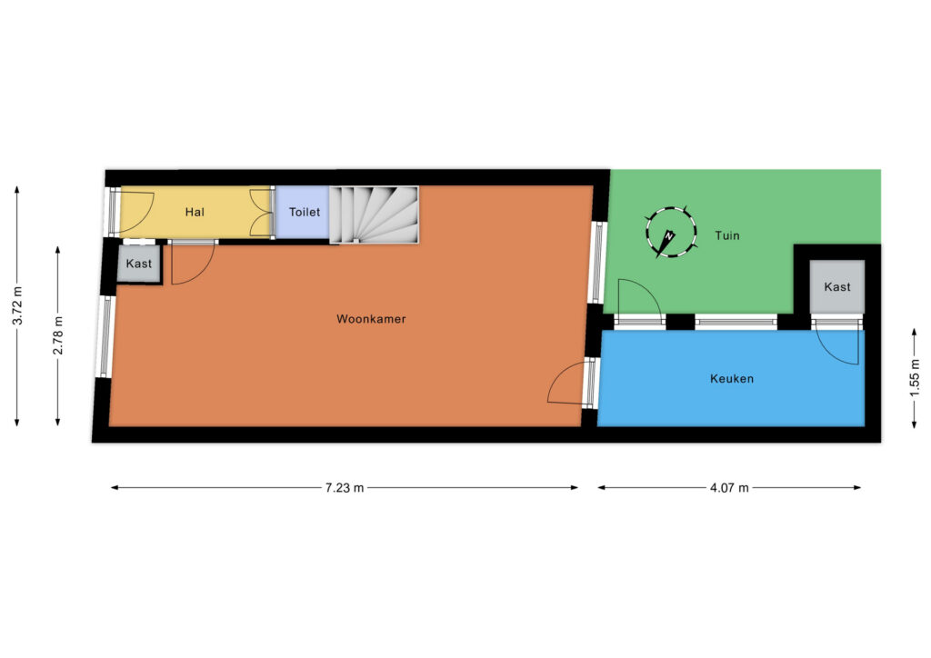
Parterre: entree, hal, toilet, woonkamer, keuken, tuin op het zuid-westen
1e etage: overloop, 2 slaapkamers, moderne badkamer met inloopdouche, ligbad, toilet en wastafel
2e etage: ruime slaapkamer, berging, schuifdeuren naar balkon op het zuid-westen

- Bijzonder fraai gemoderniseerde woning
- Bouwjaar 1890
- Moderne keuken en sanitair
- Voorzien van dubbel glas, vloerisolatie en dakisolatie
- Woonoppervlak ca 77 m2
- Goede ligging ten opzichte van centrum, uitvalswegen en openbaar vervoer
- Voldoende parkeergelegenheid
- Eigen perceel van 48 m2
- Tuin op het zuid-westen
- Balkon op het zuid-westen
- Bouwkundig gekeurde woning
- Energielabel A
- Oplevering in overleg

Overdracht
Status
Verkocht
Koopprijs
€ 525.000,-
Aanvaarding
In overleg
Woonoppervlakte
77 m2
Inhoud
275 m3
Bouwvorm
Soort object
Woonhuis
Type woning
Tussenwoning
Soort
Eengezinswoning
Bouwjaar
1890
Bouwvorm
Bestaande bouw
Ligging
Aan rustige weg, In centrum
Overdracht
Woonoppervlakte
77 m2
Perceel oppervlakte
48 m2
Inhoud
275 m3
Aantal kamers
4
Aantal slaapkamers
3
Energie
Energieklasse
A
Isolatievormen
Dakisolatie, Muurisolatie, Vloerisolatie, Dubbelglas, HR glas
Verwarming
CV ketel
Bouwjaar
2019
Buitenruimte
Tuin
Achtertuin
Hoofdtuin
Achtertuin
Hoofdtuin oppervlakte
8 m2
Positie
Zuidwest
Achterom
Nee
Kwaliteit
Verzorgd
Bergruimte
Soort
Vrijstaand hout
Parkeergelegenheid
Garage
Geen garage
Parkeer faciliteiten
Parkeervergunningen
Dak
Soort dak
Mansardedak
Kwaliteit dak
Pannen
Voorzieningen
Voorzieningen
Mechanische ventilatie, Airconditioning, Zonnepanelen
Overig
Permanente bewoning
Ja
Onderhoud binnen
Goed tot uitstekend
Onderhoud buiten
Goed tot uitstekend
Huidig gebruik
Woonruimte
Huidige bestemming
Woonruimte

Plattegronden

Lijkt deze woning iets voor jou?

Plan een bezichtiging
Wij worden met een 9,5 beoordeeld door onze klanten