Korteweg 12

Haarlem € 425.000,- k.k.
Bouwjaar1900
TypeWoonhuis
Woonoppervlakte79 m2
Perceel oppervlakte88 m2
Slaapkamers2
Badkamers1

Aan de rand van de Haarlemse Planetenbuurt staat deze tussenwoning met een op het noordoosten gelegen achtertuin van ca 10 meter diep. Het opbouwen van een 2e etage is eventueel mogelijk maar wel vergunningsplichtig. Direct om de hoek is er een grote supermarkt, de bibliotheek en diverse lokale winkels aan de Rijksstraatweg. Veel sportvoorzieningen zoals het Schoterbos en zwembad DePlaneet liggen op loopafstand. Op de fiets ben je in een minuut of 10 op het station en in het centrum, met de bus kan ook, de bushalte is om de hoek.

Bekijk deze woning via een virtuele bezichtiging. Loop door de woning heen, bekijk de woning van een afstand of zoom in. Benieuwd? Kijk op onze website of op Funda onder 3D tour.

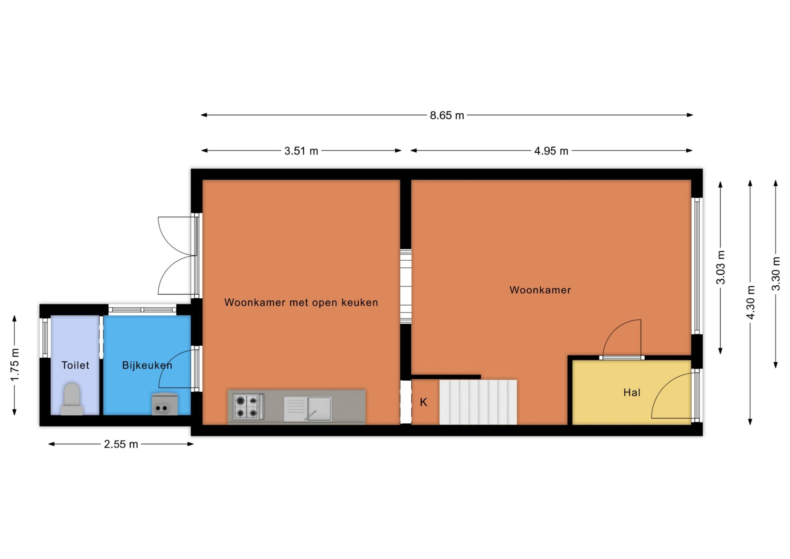
Parterre: entree, hal, voorkamer, achterkamer met open keuken en openslaande deuren naar de tuin, bijkeuken, toilet, achtertuin op het noord-oosten
1e etage: overloop, 2 slaapkamers, badkamer met ligbad, inloopdouche, wastafel en toilet
Vliering

- Woonoppervlak ca 79 m2
- Inhoud ca 260 m3
- Perceeloppervlak 88 m2
- Fundering op "staal"
- CV-ketel ATAG 2018
- Niet-zelfbewoningsclausule van toepassing
- Voorzien van dubbel glas
- Energielabel C
- Bouwkundig gekeurde woning
- Oplevering in overleg

Overdracht
Status
Verkocht o.v.
Koopprijs
€ 425.000,-
Aanvaarding
In overleg
Woonoppervlakte
79 m2
Inhoud
260 m3
Bouwvorm
Soort object
Woonhuis
Type woning
Tussenwoning
Soort
Eengezinswoning
Bouwjaar
1900
Bouwvorm
Bestaande bouw
Ligging
Aan rustige weg, In woonwijk
Overdracht
Woonoppervlakte
79 m2
Perceel oppervlakte
88 m2
Inhoud
260 m3
Aantal kamers
3
Aantal slaapkamers
2
Energie
Energieklasse
C
Isolatievormen
Dakisolatie, Dubbelglas
Verwarming
CV ketel
Bouwjaar
2018
Buitenruimte
Tuin
Achtertuin
Hoofdtuin
Achtertuin
Hoofdtuin oppervlakte
44 m2
Positie
Noordoost
Achterom
Nee
Kwaliteit
Normaal
Parkeergelegenheid
Garage
Geen garage
Parkeer faciliteiten
Openbaar parkeren
Dak
Soort dak
Samengesteld dak
Kwaliteit dak
Pannen, Bitumineuze Dakbedekking
Voorzieningen
Voorzieningen
Natuurlijke ventilatie
Overig
Permanente bewoning
Ja
Onderhoud binnen
Redelijk tot goed
Onderhoud buiten
Redelijk tot goed
Huidig gebruik
Woonruimte
Huidige bestemming
Woonruimte

Plattegronden

Lijkt deze woning iets voor jou?

Plan een bezichtiging
Wij worden met een 9,5 beoordeeld door onze klanten