Kerkweg 84

Santpoort-Noord € 495.000,- k.k.
Bouwjaar1933
TypeWoonhuis
Woonoppervlakte90 m2
Perceel oppervlakte109 m2
Slaapkamers4
Badkamers1

Lichte 30-er jaren woning met voor- en achtertuin en achterom.

Deze goed onderhouden woning ligt aan een brede en rustige straat vlakbij het gezellige centrum van Santpoort-Noord.
De ligging is heel gunstig t.o.v. winkels, openbaar vervoer en een speeltuin. Uitvalswegen zijn dichtbij evenals het centrum van Haarlem en natuurlijk de duinen, het strand en de bossen!

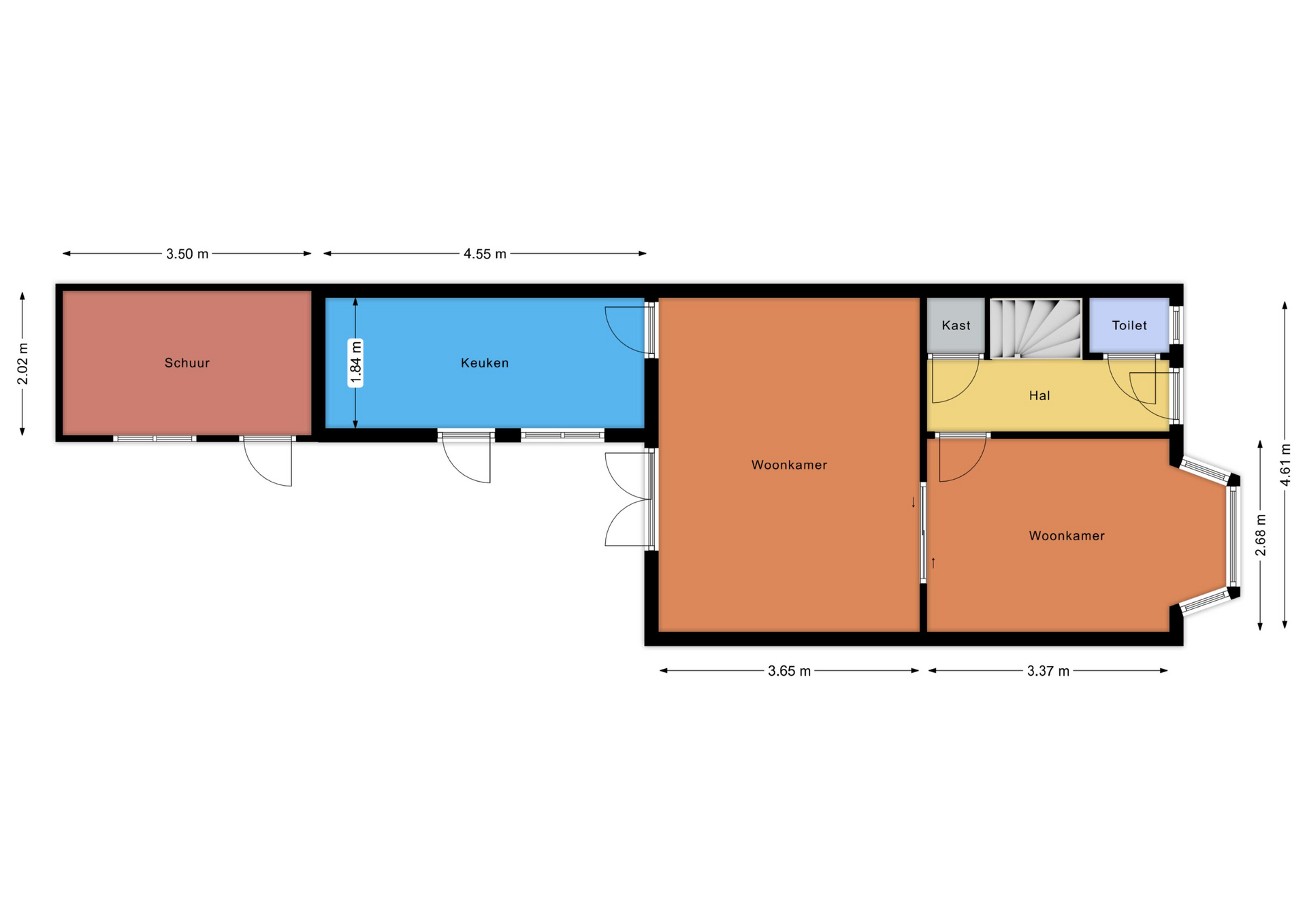
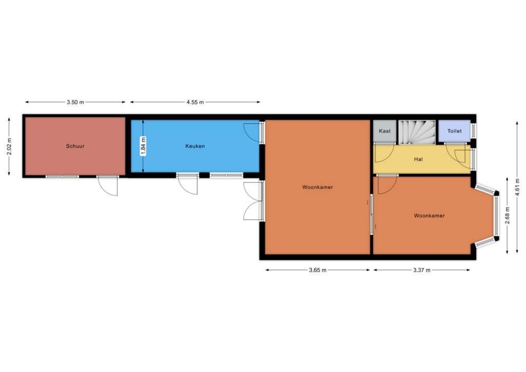
Parterre: entree, hal, toilet, woonkamer en suite met glas-in-lood schuifdeuren, openslaande deuren naar de achtertuin, dichte keuken met deur naar de tuin, aangebouwde stenen berging (verwarmd) met aansluiting voor was-apparatuur, voortuin en zonnige achtertuin op het noord-oosten met achterom.
1e etage: overloop, 3 slaapkamers, badkamer met douche, toilet en wastafel, balkon aan de voorzijde, dakterras aan de achterzijde
2e etage: overloop, fijne lichte zolderkamer met bergruimte

- Bouwjaar 1933
- Woonoppervlakte ca 90 m2
- Perceeloppervlakte 109 m2
- Bouwkundig gekeurde woning
- Energielabel C
- Zeer gewilde woonomgeving, rustig, groen en kindvriendelijk
- Diepe achtertuin met achterom
- Warm water en verwarming CV Remeha Avanta 2011
- Op loopafstand van centrum en station
- Op fietsafstand van het centrum van Haarlem, duinen en de stranden van Bloemendaal en Zandvoort
- Oplevering in overleg

Overdracht
Status
Verkocht o.v.
Koopprijs
€ 495.000,-
Aanvaarding
In overleg
Woonoppervlakte
90 m2
Inhoud
300 m3
Bouwvorm
Soort object
Woonhuis
Type woning
Tussenwoning
Soort
Eengezinswoning
Bouwjaar
1933
Bouwvorm
Bestaande bouw
Ligging
Aan rustige weg, In woonwijk
Overdracht
Woonoppervlakte
90 m2
Perceel oppervlakte
109 m2
Inhoud
300 m3
Aantal kamers
5
Aantal slaapkamers
4
Energie
Energieklasse
C
Isolatievormen
Dakisolatie, Muurisolatie, Grotendeels dubbelglas
Verwarming
CV ketel
Bouwjaar
2011
Buitenruimte
Tuin
Achtertuin, Voortuin
Hoofdtuin
Achtertuin
Hoofdtuin oppervlakte
33 m2
Positie
Noordoost
Achterom
Ja
Kwaliteit
Verzorgd
Bergruimte
Soort
Aangebouwd steen
Voorzieningen
Voorzien van verwarming, Voorzien van elektra, Voorzien van water
Parkeergelegenheid
Garage
Geen garage
Voorzieningen
Voorzien van verwarming, Voorzien van elektra, Voorzien van water
Parkeer faciliteiten
Openbaar parkeren
Dak
Soort dak
Samengesteld dak
Kwaliteit dak
Pannen, Bitumineuze Dakbedekking
Voorzieningen
Voorzieningen
Natuurlijke ventilatie
Overig
Permanente bewoning
Ja
Onderhoud binnen
Goed
Onderhoud buiten
Goed
Huidig gebruik
Woonruimte
Huidige bestemming
Woonruimte

Plattegronden

Lijkt deze woning iets voor jou?

Plan een bezichtiging
Wij worden met een 9,5 beoordeeld door onze klanten