Iordensstraat 4

Haarlem € 1.200.000,- k.k.
Bouwjaar1910
TypeWoonhuis
Woonoppervlakte185 m2
Perceel oppervlakte177 m2
Slaapkamers7
Badkamers1

Ruim en karakteristiek herenhuis met voortuin en heerlijk zonnige achtertuin op het zuid-westen. Ligging in de geliefde Koninginnebuurt.

Deze sfeervolle lichte tussenwoning heeft nog diverse authentieke details en naast de riante woonkamer en-suite zijn er 7 slaapkamers.
De achtertuin is heerlijk zonnig en ligt op het zuid-westen. Een prachtig familiehuis dat nog naar eigen wens gemoderniseerd kan worden.

De woning ligt op loopafstand van het centrum en de Haarlemmerhout waar je kan wandelen en sporten. Super centrale ligging t.o.v. kinderdagverblijven, basisscholen, winkels, NS-stations Haarlem en Heemstede-Aerdenhout, busstation Houtplein met snelle verbinding naar Zuidas en Schiphol en uitvalswegen naar Amsterdam (Schiphol), Den Haag en Alkmaar. Op de fiets ben je in een goed half uur in de duinen of op het strand van Bloemendaal of Zandvoort.

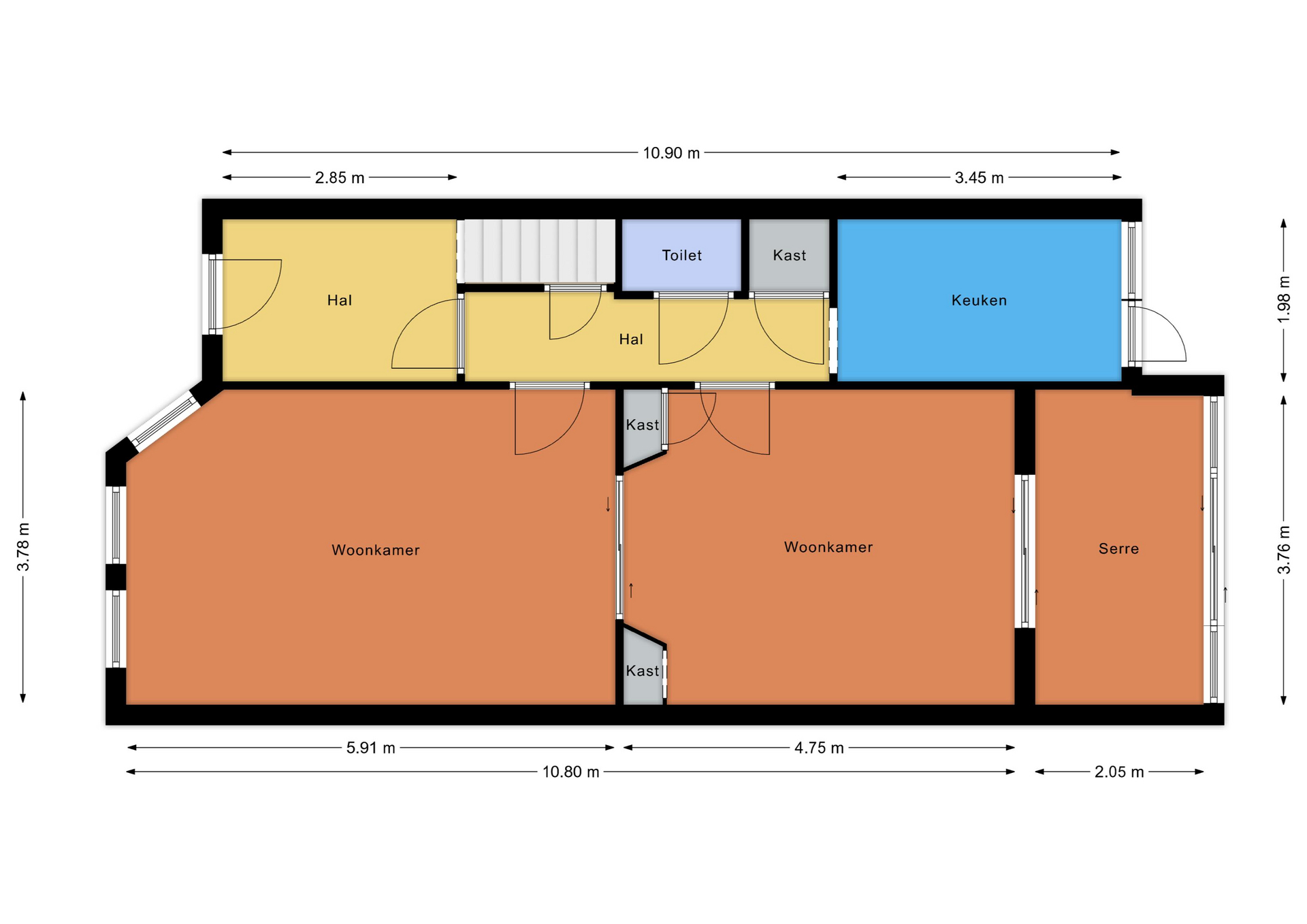
Parterre: entree, hal, toilet, woonkamer en suite, serre met schuifpui naar de zonnige achtertuin op het zuid-westen, dichte keuken, berging
1e etage: overloop, toilet, 4 kamers, badkamer met douche, terras aan de achterzijde op het zuid-westen, balkon aan de voorzijde
2e etage: overloop, 3 kamers, grote berging
Vliering: deels bevloerde vliering

- Bouwjaar 1910
- Woonoppervlak ca 185 m2
- Perceeloppervlak 177 m2
- Riante woon- en slaapkamers
- Hoge plafonds
- Bijzonder hoge 2e etage met veel indelingsmogelijkheden
- Fijne zonnige tuin op het zuid-westen
- Een huis met mogelijkheden
- Bouwkundig gekeurde woning
- Energielabel D
- Parkeren met Zone C Zuid vergunning
- Zeer geliefde woonomgeving aan de rand van Haarlem-Centrum
- Speelterrein voor kinderen om de hoek
- Op loopafstand van het centrum
- Op loopafstand van busstation Houtplein met snelle verbinding naar Zuidas en Schiphol
- Op fietsafstand van NS-stations Haarlem of Heemstede-Aerdenhout
- Voor maatvoering en indeling zie kleuren plattegronden
- Oplevering in overleg

Overdracht
Status
Nieuw
Koopprijs
€ 1.200.000,-
Aanvaarding
In overleg
Woonoppervlakte
185 m2
Inhoud
725 m3
Bouwvorm
Soort object
Woonhuis
Type woning
Tussenwoning
Soort
Herenhuis
Bouwjaar
1910
Bouwvorm
Bestaande bouw
Ligging
Aan rustige weg, In woonwijk
Overdracht
Woonoppervlakte
185 m2
Perceel oppervlakte
177 m2
Inhoud
725 m3
Aantal kamers
8
Aantal slaapkamers
7
Energie
Energieklasse
D
Isolatievormen
Gedeeltelijk dubbelglas
Verwarming
CV ketel
Bouwjaar
2011
Buitenruimte
Tuin
Achtertuin, Voortuin
Hoofdtuin
Achtertuin
Hoofdtuin oppervlakte
76 m2
Positie
Zuidwest
Achterom
Nee
Kwaliteit
Normaal
Bergruimte
Soort
Vrijstaand steen
Parkeergelegenheid
Garage
Geen garage
Parkeer faciliteiten
Parkeervergunningen
Dak
Soort dak
Samengesteld dak
Kwaliteit dak
Pannen, Bitumineuze Dakbedekking
Voorzieningen
Voorzieningen
Natuurlijke ventilatie
Overig
Permanente bewoning
Ja
Onderhoud binnen
Redelijk tot goed
Onderhoud buiten
Redelijk tot goed
Huidig gebruik
Woonruimte
Huidige bestemming
Woonruimte

Plattegronden

Lijkt deze woning iets voor jou?

Plan een bezichtiging
Wij worden met een 9,5 beoordeeld door onze klanten