Floresstraat 75

Haarlem € 549.000,- k.k.
Bouwjaar1927
TypeWoonhuis
Woonoppervlakte100 m2
Perceel oppervlakte122 m2
Slaapkamers3
Badkamers1

Ruime en lichte tussenwoning met 3 slaapkamers, voortuin, achtertuin op het noord-oosten en een stenen schuur.

Bekijk deze woning via een virtuele bezichtiging. Loop door de woning heen, bekijk de woning van een afstand of zoom in. Benieuwd? Kijk op onze website of op Funda onder 3D tour.

De Floresstraat ligt lekker centraal in Haarlem. Op loopafstand van winkelstraat de Cronjé en een grote Albert Heijn, op fietsafstand van het NS-station van Haarlem en en de duinen en stranden van Bloemendaal en Zandvoort. Op donderdag is er markt in het eerste deel van de Floresstraat. Uitvalswegen richting Amsterdam, Schiphol, Alkmaar, Utrecht, Den Haag en Rotterdam zijn snel en eenvoudig te bereiken.

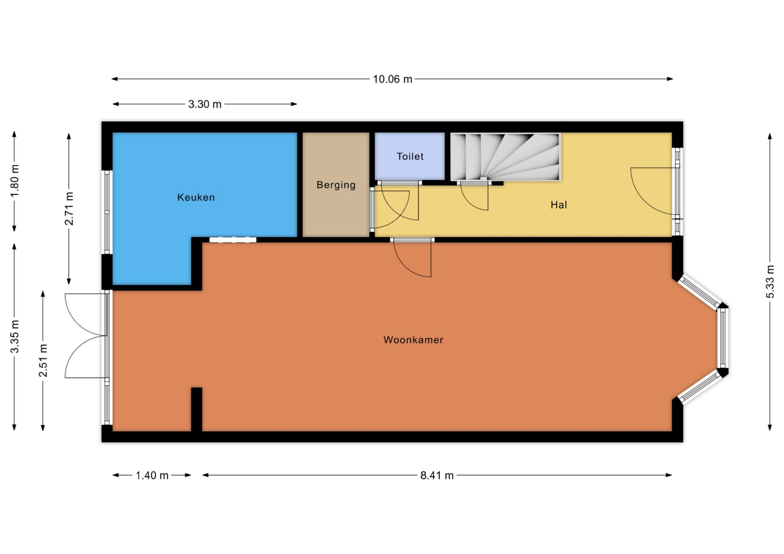
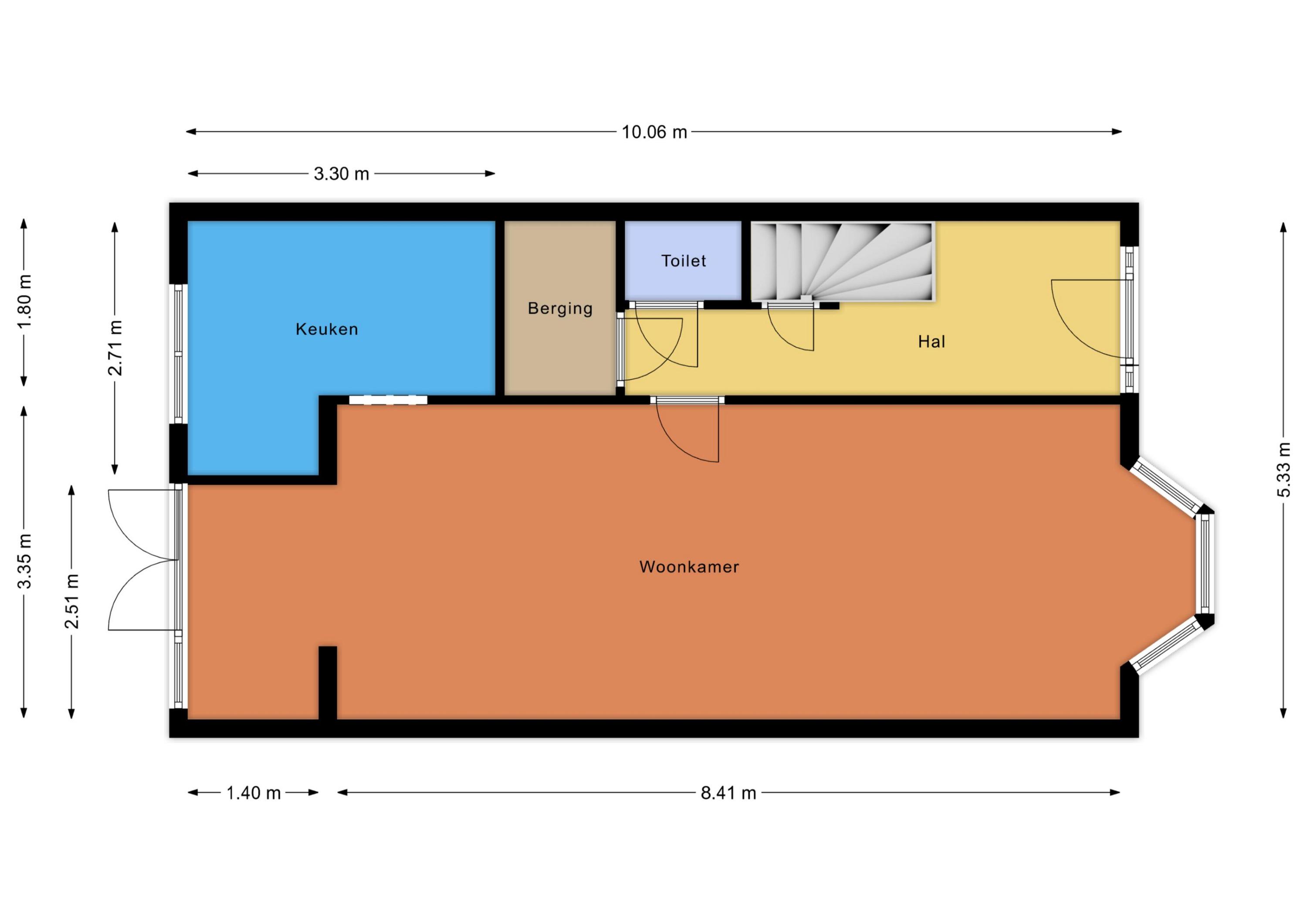
Parterre: entree, hal, toilet, berging, woonkamer met erker en openslaande deuren naar de achtertuin, moderne keuken, achtertuin, stenen schuur
1e etage: overloop, 3 slaapkamers, moderne badkamer met inloopdouche, toilet, wastafel en plaats voor wasmachine, balkons aan de voor- en achterzijde

- Heerlijk licht en ruim huis
- Woonoppervlakte ca 100 m2
- Bouwjaar 1927
- Eigen grond 122 m2
- 3 slaapkamers
- Voortuin, achtertuin op het noord-oosten
- Vrijstaand stenen schuur
- CV combiketel 2008
- Energielabel C
- Bouwkundig gekeurde woning
- Prima ligging t.o.v. winkels, scholen en sportvoorzieningen
- Op fietsafstand van centrum, duinen en het strand van Zandvoort of Bloemendaal
- Oplevering in overleg

Overdracht
Status
Beschikbaar
Koopprijs
€ 549.000,-
Aanvaarding
In overleg
Woonoppervlakte
100 m2
Inhoud
325 m3
Bouwvorm
Soort object
Woonhuis
Type woning
Tussenwoning
Soort
Eengezinswoning
Bouwjaar
1927
Bouwvorm
Bestaande bouw
Ligging
Aan rustige weg, In woonwijk
Overdracht
Woonoppervlakte
100 m2
Perceel oppervlakte
122 m2
Inhoud
325 m3
Aantal kamers
4
Aantal slaapkamers
3
Energie
Energieklasse
C
Isolatievormen
Dubbelglas
Verwarming
CV ketel
Bouwjaar
2008
Buitenruimte
Tuin
Achtertuin, Voortuin
Hoofdtuin
Achtertuin
Hoofdtuin oppervlakte
32 m2
Positie
Noordoost
Achterom
Nee
Kwaliteit
Verzorgd
Bergruimte
Soort
Vrijstaand steen
Parkeergelegenheid
Garage
Geen garage
Parkeer faciliteiten
Openbaar parkeren
Dak
Soort dak
Plat dak
Kwaliteit dak
Bitumineuze Dakbedekking
Voorzieningen
Voorzieningen
Natuurlijke ventilatie
Overig
Permanente bewoning
Ja
Onderhoud binnen
Goed
Onderhoud buiten
Goed
Huidig gebruik
Woonruimte
Huidige bestemming
Woonruimte

Plattegronden

Lijkt deze woning iets voor jou?

Plan een bezichtiging
Wij worden met een 9,5 beoordeeld door onze klanten