Doelstraat 20A

Haarlem € 665.000,- k.k.
Bouwjaar1895
TypeWoonhuis
Woonoppervlakte98 m2
Perceel oppervlakte43 m2
Slaapkamers2
Badkamers1

Tophuis in de Haarlemse Vijfhoek.

Deze woning ligt op loopafstand van alles wat Haarlem te bieden heeft. Van leuke winkels en gezellige restaurants tot cultuur zoals het Teylers Museum, de PHIL en de Stadsschouwburg. De duinen en stranden van Bloemendaal en Zandvoort zijn eenvoudig met de fiets te bereiken.

Bekijk deze woning via een virtuele bezichtiging. Loop door de woning heen, bekijk de woning van een afstand of zoom in. Benieuwd? Kijk op onze website of op Funda onder 3D tour.

Kelder
Begane grond: entree met meterkast, toilet, ruime woonkeuken
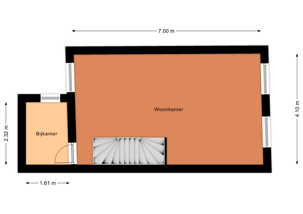
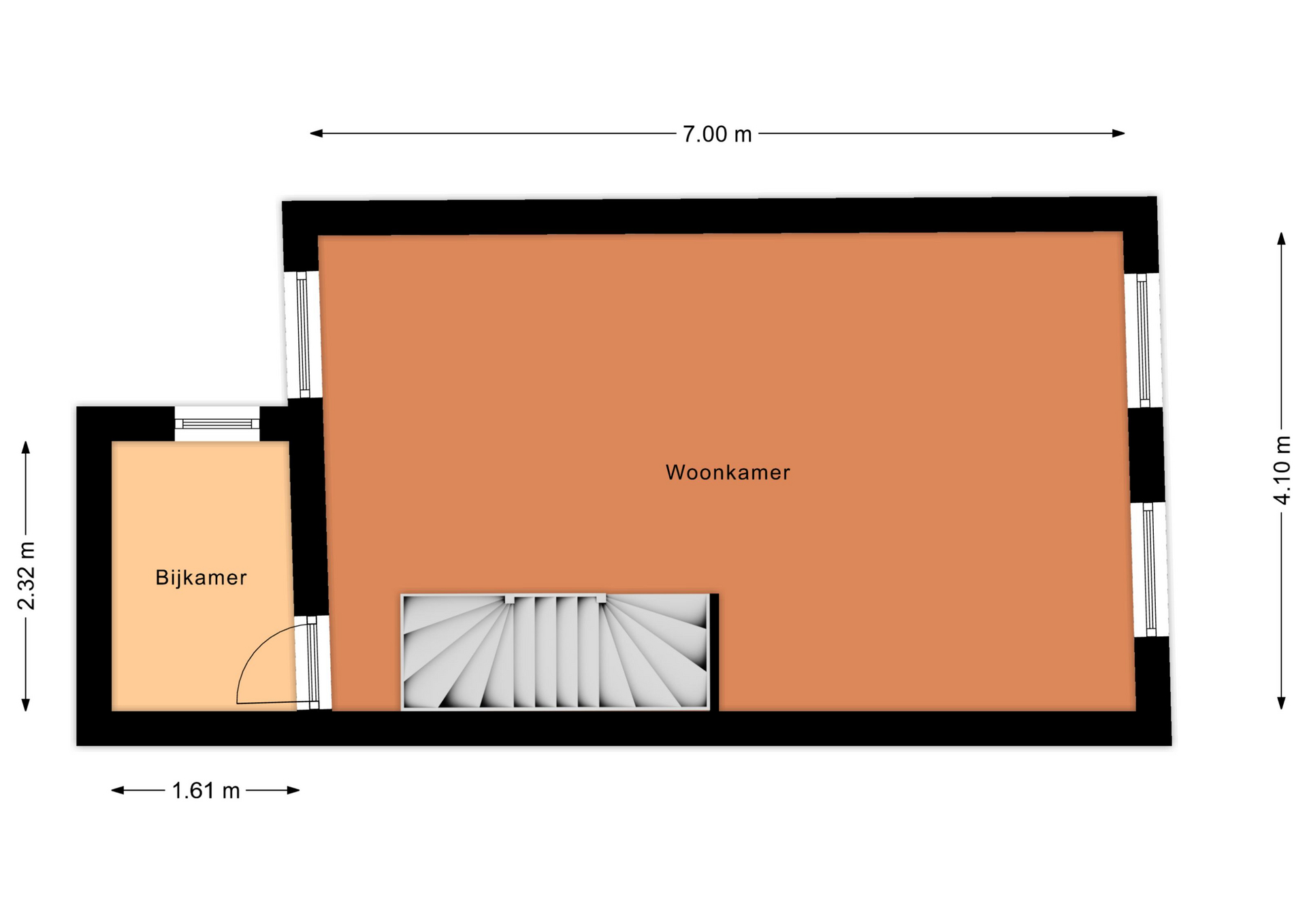
1e etage: slaapkamer/woonkamer, bijkamer, mogelijkheid voor 2 slaapkamers (zie plattegrond)
2e etage: overloop met vaste kasten, toilet, slaapkamer, badkamer met douche en wastafel, dakterras op het zuid-westen
Vliering via vlizotrap

- Karakteristiek huis met dakterras op het zuid-westen
- De 1e etage is nu in gebruik als woonkamer maar kan ook als slaapkamer worden gebruikt
- Woonoppervlak ca 98 m2
- Bouwjaar 1895
- Begane grond voormalig winkelpand (met eigen entree)
- Voorgevel voorzien van knipvoeg
- Schilderwerk buiten september 2024
- Hoge plafonds
- Veel daglicht
- Eiken vloerdelen door gehele huis (met uitzondering van plavuizen in gang en wc’s)
- Goed geïsoleerde woonkeuken (lekkere temperatuur ook als het buiten 30 graden is)
- Heerlijk zonnig dakterras op de 2e etage
- Moderne keuken en sanitair
- CV Remeha 2016
- Gedeeltelijk voorzien van dubbel glas
- Beschermd stadsgezicht
- Bouwkundig gekeurde woning
- Energielabel C
- Oplevering in overleg

Overdracht
Status
Verkocht
Koopprijs
€ 665.000,-
Aanvaarding
In overleg
Woonoppervlakte
98 m2
Inhoud
375 m3
Bouwvorm
Soort object
Woonhuis
Type woning
Tussenwoning
Soort
Eengezinswoning
Bouwjaar
1895
Bouwvorm
Bestaande bouw
Ligging
In centrum
Overdracht
Woonoppervlakte
98 m2
Perceel oppervlakte
43 m2
Inhoud
375 m3
Aantal kamers
4
Aantal slaapkamers
2
Energie
Energieklasse
C
Isolatievormen
Gedeeltelijk dubbelglas
Verwarming
CV ketel
Bouwjaar
2016
Buitenruimte
Tuin
Geen tuin
Achterom
Nee
Parkeergelegenheid
Garage
Geen garage
Parkeer faciliteiten
Parkeervergunningen
Dak
Soort dak
Samengesteld dak
Kwaliteit dak
Pannen, Bitumineuze Dakbedekking
Voorzieningen
Voorzieningen
Natuurlijke ventilatie
Overig
Permanente bewoning
Ja
Onderhoud binnen
Goed
Onderhoud buiten
Goed
Huidig gebruik
Woonruimte
Huidige bestemming
Woonruimte

Plattegronden

Lijkt deze woning iets voor jou?

Plan een bezichtiging
Wij worden met een 9,5 beoordeeld door onze klanten