Claus Sluterweg 279

Haarlem € 725.000,- k.k.
Bouwjaar2019
TypeAppartement
Woonoppervlakte112 m2
Slaapkamers2
Badkamers1

*** English text below***

Licht en loftachtig appartement met fraai uitzicht over de Haarlemmer Hout en Haarlem-Zuid. Twee slaapkamers, een riant balkon over de volle breedte, eigen parkeerplaats en berging. Zeer centrale ligging op de rand van Haarlem en Heemstede.

Bekijk deze woning via een virtuele bezichtiging. Loop door de woning heen, bekijk de woning van een afstand of zoom in. Benieuwd? Kijk op onze website of op Funda onder 3D tour.

Het appartement ligt op de 6e etage van de linker (hoek) toren van De Houtwachters, een nieuwbouwproject uit 2019 gebouwd onder architectuur van Diederik Dam (Dam & Partners Architecten). Wat direct opvalt bij het betreden van de ruim bemeten woonkamer, zijn de grote raampartijen aan twee zijden waardoor een zee van licht de woning kan betreden. De open keuken, het sanitair (twee toiletten, inloopdouche en bad) en vloeren geven de woning een moderne uitstraling. Naast de twee slaapkamers is er een inloopkast bij de bouw gecreëerd, een droom voor menigeen. Voorts geeft de technische ruimte naast een plek voor de was-droog combinatie en de cv-ketel nog voldoende extra opbergcapaciteit.
Behalve dat het balkon over de gehele breedte van het appartement gesitueerd is, geeft de balkonbeglazing, geplaatst in 2020, extra bescherming tegen de weersinvloeden. Zowel de ochtend- als de avondzon beschijnen het balkon.
De bewoners van de Houtwachters vormen inmiddels een vriendelijke community met diversiteit in leeftijden.
Uiteraard heeft het appartement energie-label A.

Onder het gebouw bevinden zich voor bewoners een parkeergarage, fietsenstalling en bergingen. Op het binnenterrein is er parkeerruimte voor bezoekers welke is afgesloten met een elektrisch hek, te bedienen met een app of afstandsbediening.

De ligging is ideaal, omzoomd door veel groen (stadsbos de Haarlemmer Hout), op loop- of fietsafstand van zowel de Haarlemse binnenstad als de gezellige Binnenweg van Heemstede. Met een half uur fietsen ben je in de duinen of op het strand van Zandvoort of Bloemendaal. Het NS-station Heemstede-Aerdenhout ligt op loopafstand en brengt je bijvoorbeeld in ongeveer 20 minuten naar Amsterdam Centraal of Leiden Centraal. Met de auto is de N205 richting Amsterdam, Schiphol, Leiden en Den Haag (via A4 en A9) eenvoudig te bereiken.

Onderbouw: parkeergarage met eigen parkeerplaats. Gedeelde fietsenberging en private berging.
Parterre: bellentableau en brievenbussen, entree met lift en trappenhuis.
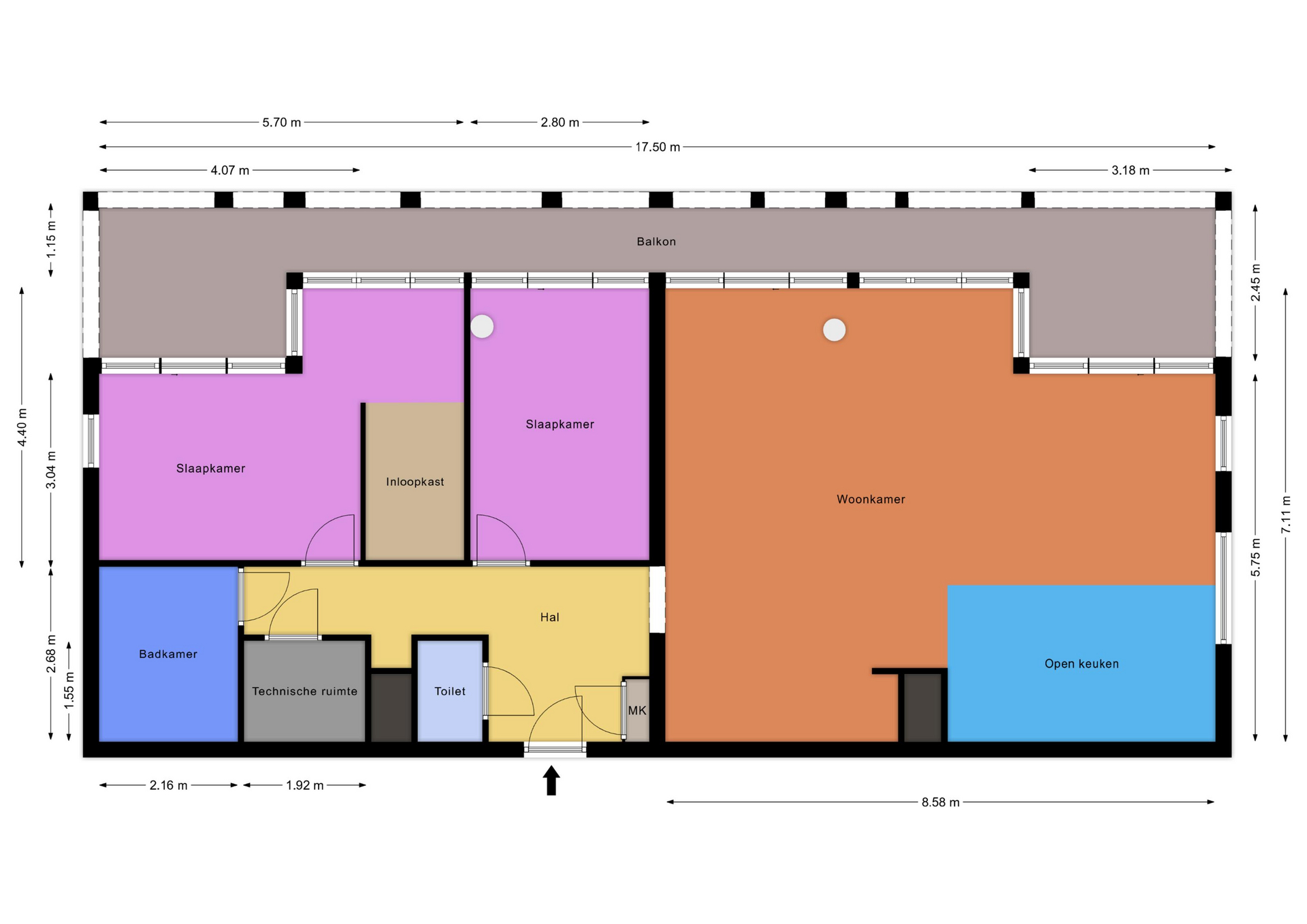
6e etage: entree, ruime hal, toilet, videofoon en meterkast, riante woonkamer met schuifdeuren naar het grote balkon met uitzicht over de Haarlemmer Hout, open keuken, technische ruimte met cv-ketel, luchtbehandelingssysteem en wasmachine- en droger aansluiting, 2 slaapkamers met schuifdeur naar het balkon, inloopkast, badkamer met wastafelmeubel, ruime inloopdouche, 2e toilet en ligbad.

- Bouwjaar 2019
- Energielabel A
- Prachtig uitzicht over de Haarlemmerhout en richting Haarlem-Zuid
- Moderne en luxe open keuken met inbouwapparatuur
- Groot balkon met balkonbeglazing
- Vloerverwarming door het gehele appartement
- Parkeerplaats in de ondergelegen parkeergarage
- Lift
- Parkeren voor gasten op het binnenterrein
- Maandelijkse bijdrage VVE € 250
- Voor maten en indeling, zie de plattegrond
- Oplevering in overleg

***************************************************************************

Light and Spacious Loft-alike Apartment with Stunning Views over Haarlemmer Hout and Haarlem-Zuid. Two Bedrooms, Expansive Balcony, Private Parking, and Storage. Highly Central Location on the Edge of Haarlem and Heemstede.

Explore this property through a virtual tour. Walk through the apartment, view it from a distance, or zoom in. Curious? Visit our website or check Funda under the 3D tour section.

The apartment is located on the 6th floor of the left (corner) tower of "De Houtwachters", a 2019 new development designed by Diederik Dam (Dam & Partners Architects). Upon entering the generously proportioned living room, what immediately catches your eye are the large windows on two sides that allow an abundance of light to flood the interior. The open kitchen, sanitary facilities (two toilets, walk-in shower, and bathtub), and floors contribute to the modern ambiance of the property. In addition to the two bedrooms, there is a walk-in closet created during construction, a dream for many. Furthermore, the technical room provides space for the washer-dryer combination and the central heating system, along with ample extra storage capacity.

Apart from the balcony spanning the entire width of the apartment, the balcony glazing installed in 2020 offers extra protection against weather influences. Both the morning and evening sun shine upon the balcony. The residents of De Houtwachters have formed a friendly community with diversity in ages. Naturally, the apartment boasts an energy label A.

Below the building, residents have access to an underground parking garage, bicycle storage, and individual storage units. The inner courtyard offers parking space for visitors, secured by an electric gate operable through an app or remote control.

The location is ideal, surrounded by greenery (the Haarlemmer Hout urban forest), within walking or cycling distance from both downtown Haarlem and the charming Binnenweg of Heemstede. Within half an hour of cycling, you can reach the dunes or the beaches of Zandvoort or Bloemendaal. The Heemstede-Aerdenhout train station is within walking distance and provides convenient connections, for example, approximately 20 minutes to Amsterdam Central or Leiden Central. By car, the N205 highway to Amsterdam, Schiphol, Leiden, and The Hague (via A4 and A9) is easily accessible.

Layout:
- Basement: Underground parking garage with private parking space. Shared bicycle storage and private storage unit.
- Ground floor: Intercom system and mailboxes, entrance with elevator and staircase.
- 6th floor: Entrance, spacious hallway, toilet, video intercom, and meter cupboard. Expansive living room with sliding doors to the large balcony offering views over Haarlemmer Hout, open kitchen, technical room housing the central heating system, air ventilation system, and washer-dryer connections. Two bedrooms with sliding doors to the balcony, walk-in closet, bathroom with vanity unit, spacious walk-in shower, second toilet, and bathtub.

Features:
- Year of construction: 2019
- Energy label: A
- Beautiful views over Haarlemmer Hout and towards Haarlem-Zuid
- Modern and luxurious open kitchen with built-in appliances
- Large balcony with balcony glazing
- Underfloor heating throughout the apartment
- Parking space in the underground garage
- Elevator
- Parking space for guests in the inner courtyard
- Monthly contribution to the Owners' Association (VVE): € 250
- For dimensions and layout, refer to the floor plan
- Handover date to be arranged

Overdracht
Status
Verkocht o.v.
Koopprijs
€ 725.000,-
Aanvaarding
In overleg
Woonoppervlakte
112 m2
Inhoud
335 m3
Bouwvorm
Soort object
Appartement
Bouwjaar
2019
Bouwvorm
Bestaande bouw
Ligging
In woonwijk, Vrij uitzicht
Overdracht
Woonoppervlakte
112 m2
Inhoud
335 m3
Aantal kamers
3
Aantal slaapkamers
2
Energie
Energieklasse
A
Isolatievormen
Volledig geïsoleerd
Verwarming
CV ketel
Bouwjaar
2019
Buitenruimte
Tuin
Geen tuin
Achterom
Nee
Bergruimte
Soort
Box
Parkeergelegenheid
Garage
Geen garage
Parkeer faciliteiten
Parkeergarage
Parkeren capaciteit
1
Dak
Soort dak
Plat dak
Kwaliteit dak
Bitumineuze Dakbedekking
Voorzieningen
Voorzieningen
Mechanische ventilatie, Lift, Schuifpui, Natuurlijke ventilatie
Overig
Permanente bewoning
Ja
Onderhoud binnen
Goed tot uitstekend
Onderhoud buiten
Goed tot uitstekend
Huidig gebruik
Woonruimte
Huidige bestemming
Woonruimte

Plattegronden

Lijkt deze woning iets voor jou?

Plan een bezichtiging
Wij worden met een 9,5 beoordeeld door onze klanten